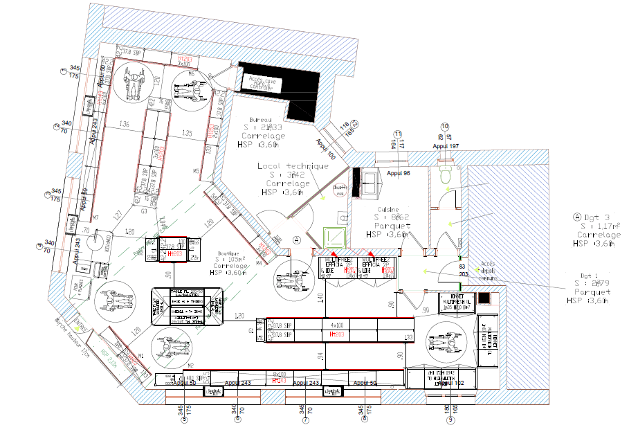
Transformation d’un ancien bar/tabac en commerce de proximité sous l’enseigne Vival (groupe Casino).
Les travaux ont consisté à mettre les installations aux normes et à réaménager l’espace intérieur pour répondre aux exigences spécifiques du commerce alimentaire.
